112 & 114 S Lafayette Ave
Bremerton, WA 98312

Scroll to Content

Details

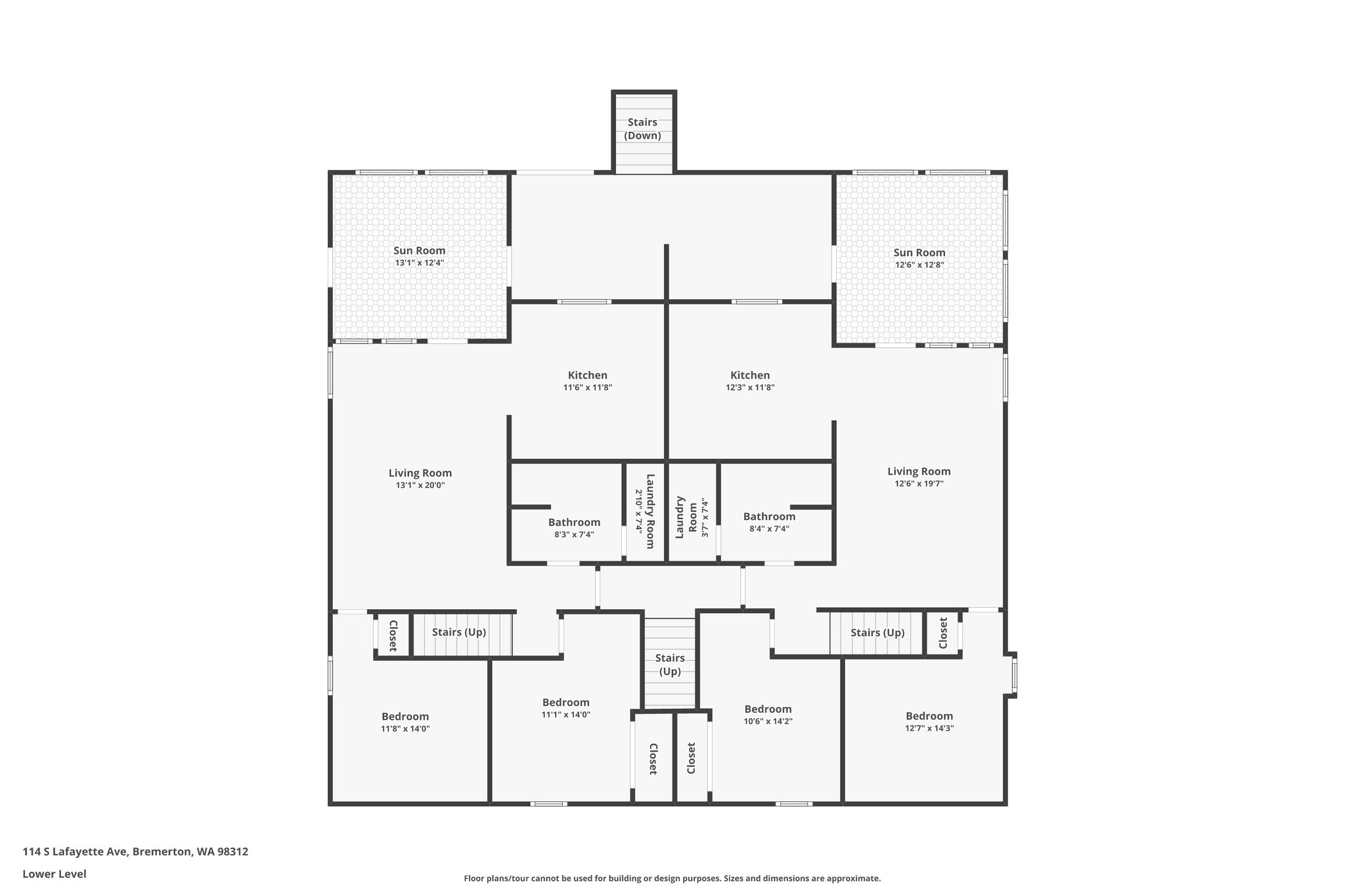
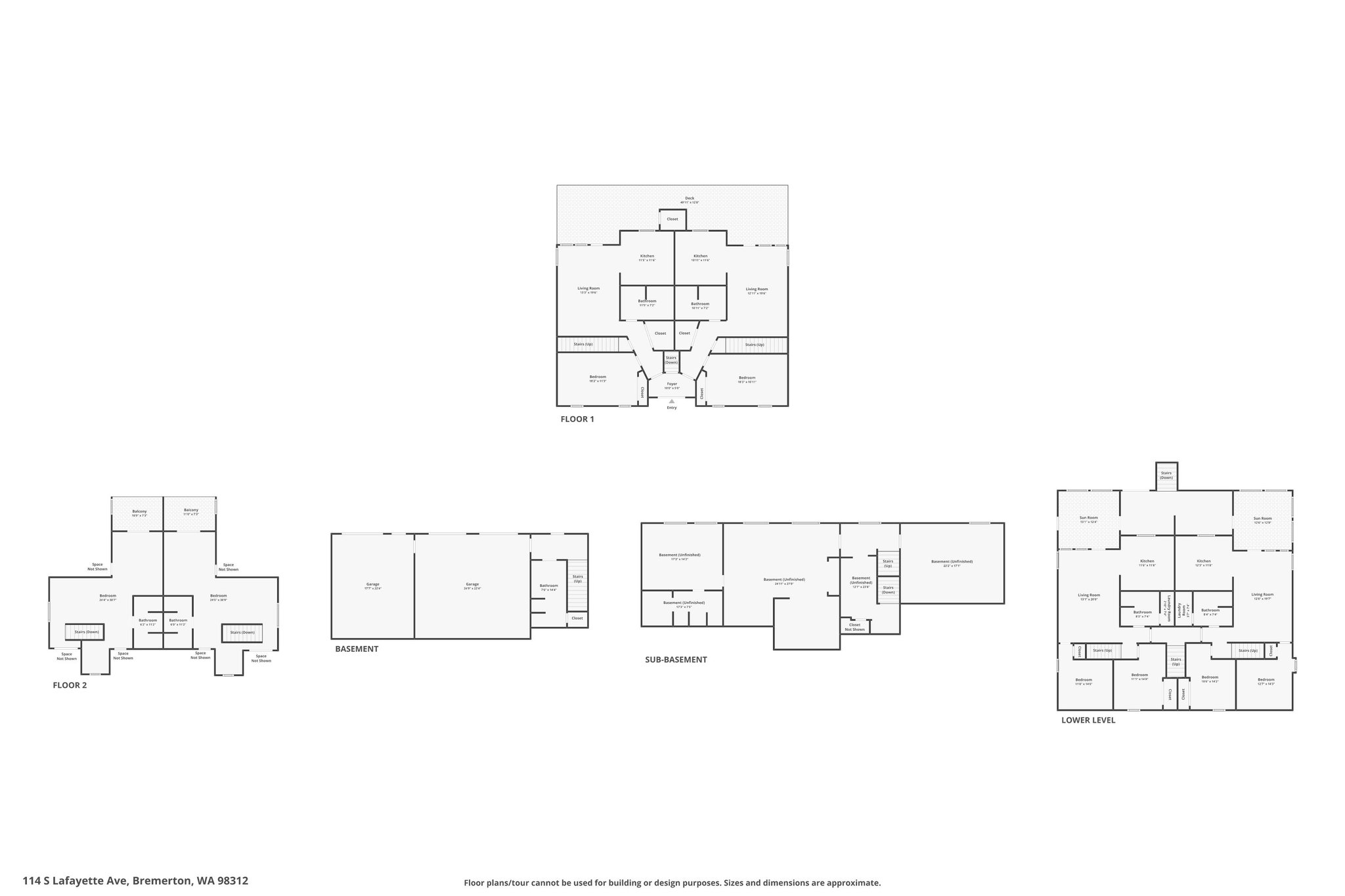
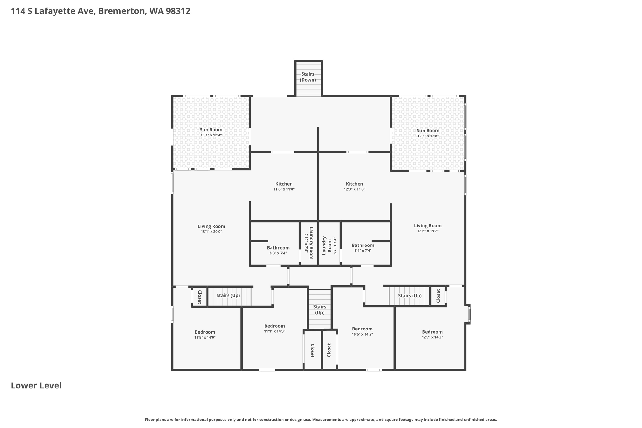
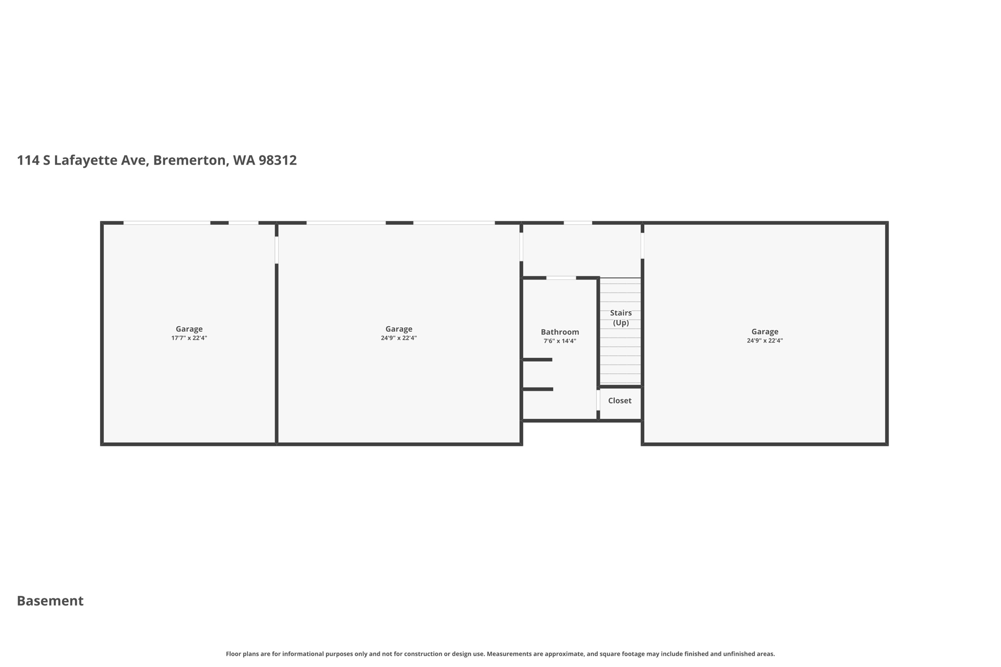
Versatile duplex property with expansive multi-level living! Legally recognized duplex offering strong income potential and flexibility for investors or owner-occupants. Each side features spacious layouts currently utilized as 2 levels, with 2 bedrooms and 1.75 baths, plus potential for a 3rd level with 2 additional bedrooms and 1 bath. Ideal for multi-generational living or creating additional rental income. Enjoy city views and oversized decks that extend the living area outdoors. Approx. 7,700 total sq ft including ~5,700 finished and ~2,000 unfinished space (buyer to verify), offering flexibility and future potential. Oversized 5-car garage plus 3 additional parking spaces directly in front of the property provide ample parking. Ideally located just steps from PSNS with easy freeway and ferry access, making commuting convenient. Recent updates include new paint and carpet in the 112 lower unit. Sold as-is. Excellent opportunity to add value or hold as a long-term investment in a desirable location with consistent income potential. Buyer to verify all information. Don’t miss the 3D tour and floor plans in the virtual tour link!

  • $765,000
  • 4 Bedrooms
  • 4 Bathrooms
  • 7,600 Sq/ft
  • Lot 0.21 Acres
  • 5 Parking Spots
  • Built in 1987
  • MLS: 2497614

Images

Exterior and Drone

Upper Level 114

Upper Level 112

Lower Level 114

Unfinished Space

Garages

Floor Plan

Floor Plans

3D Tour